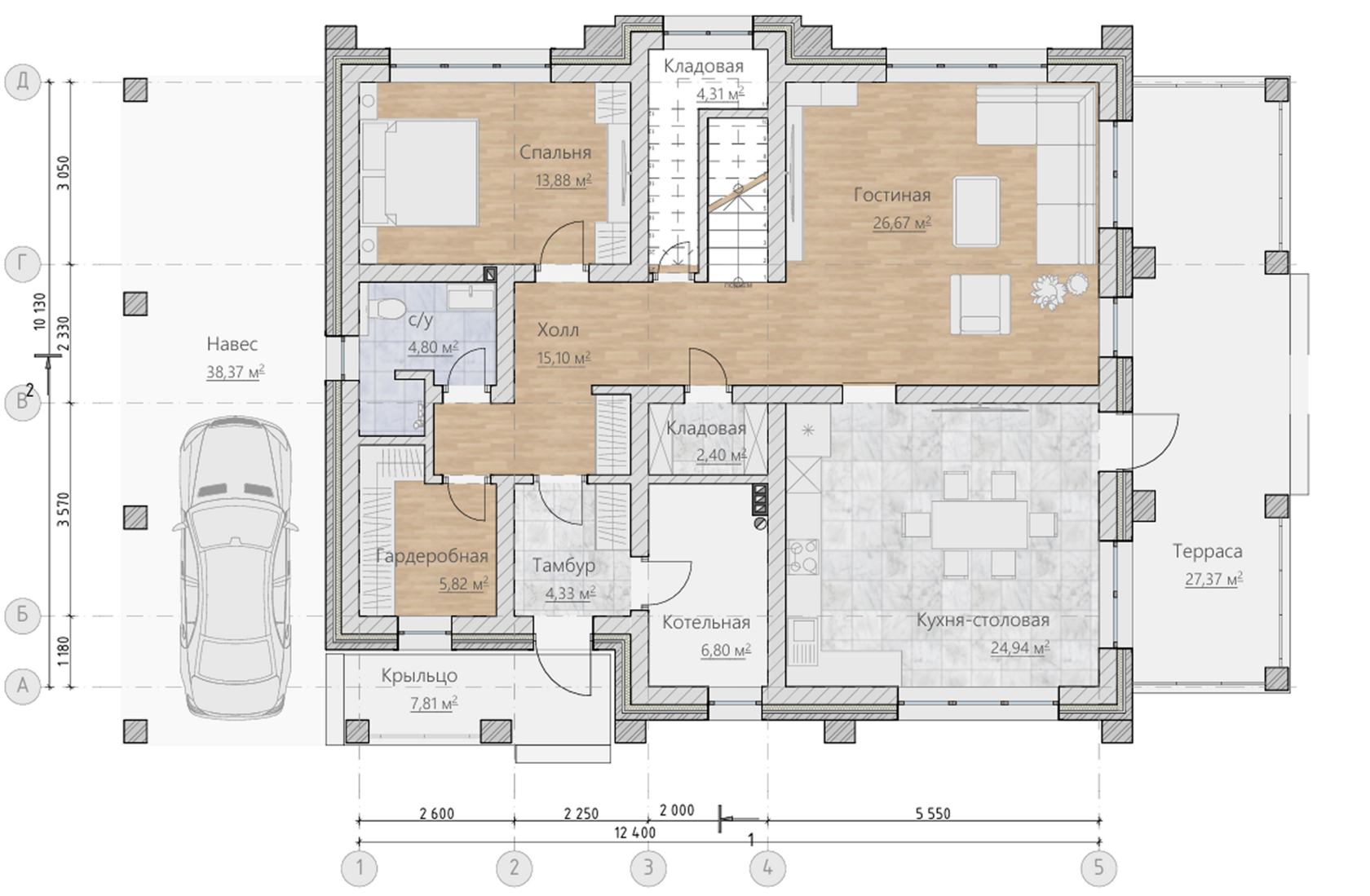
Экстерьер ДСУ-170/2 выполнен в сдержанной геометрии с акцентами из планкена - деревянных вставках на фоне светлой штукатурки. Панели долговечны, не требуют ухода и долго сохраняют свежий вид.
Панорамные окна наполняют дом светом, а терраса расширяет жилое пространство и связывает дом с участком.
Выступающие окна, которые делают дом визуально объёмнее. Подоконник при этом можно использовать как дополнительную поверхность для хранения вещей.
Интерьер повторяет лаконичные формы и светлую палитру фасада.
Под лестницей предусмотрено вместительное место для хранения. Удобно убрать вещи, которые обычно занимают место в комнате — коробки, игрушки или сезонные вещи.
Дом сдан в комплектации "Теплый контур", продолжаются работы по "White Box".
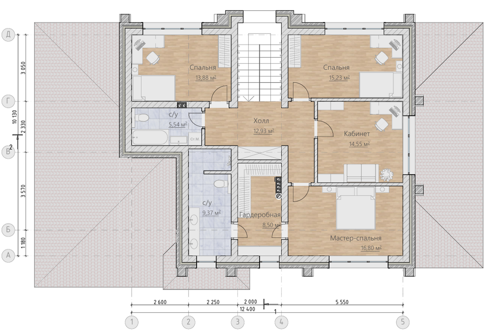
Одноэтажный дом площадью 140м², для комфортной жизни 4-5 человек. Планировка сделана таким образом, что родительская зона никаким образом не пересекается с детской.
Внутри дома на общей площади 140 м² размещены:
Светлая кухня-гостиная с панорамными окнами и выходом на задний двор.
Три спальни, две детских и мастер-спальня, с полноценным санузлом и гардеробной для родителей.
Из преимуществ - это кабинет, для людей, работающих удалённо, или возможность сделать ещё одну спальню, например, гостевую.
Один санузел около детских спален.
Гардеробная, котельная и отдельная прачечная.
Дом сдан в комплектации "White Box".
Типовой проект ДСУ 120. Всеволожский район, д.Кальтино
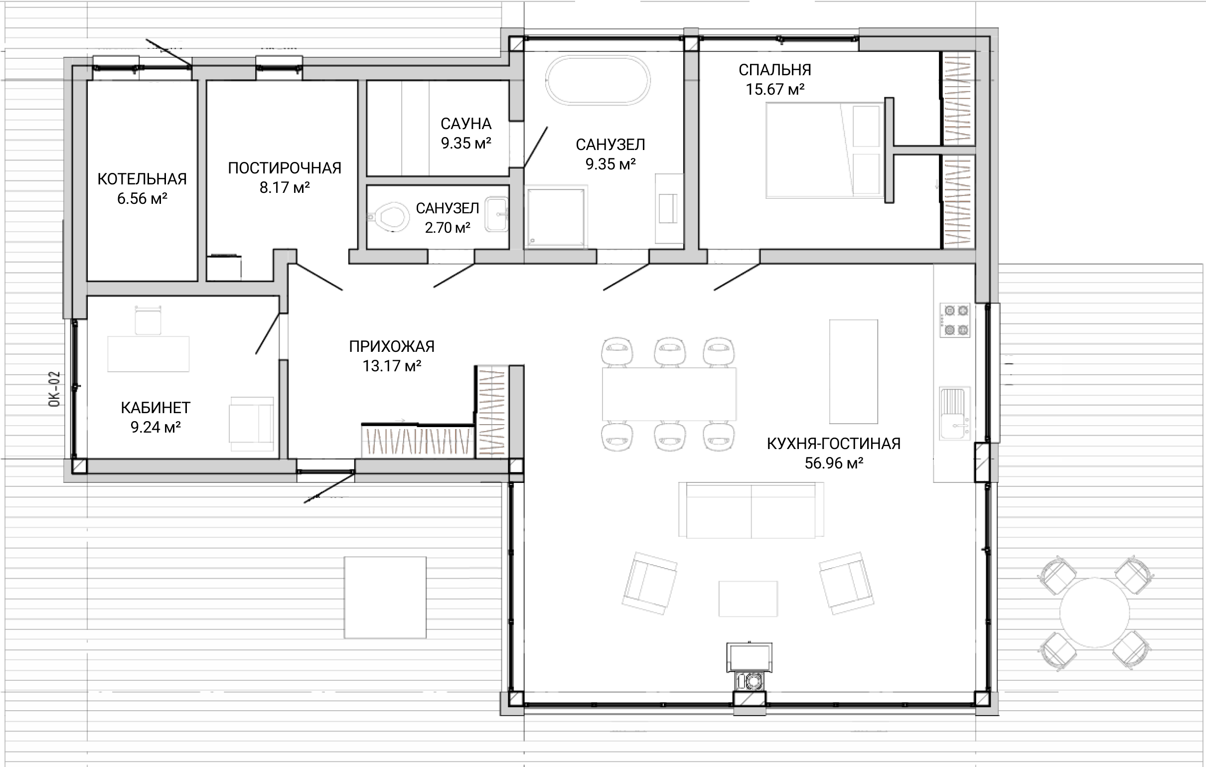
Проект ДСУ 120 — это одноэтажный дом площадью 120 м². Подойдёт семье из 3–4 человек, которая хочет компактный и продуманный дом. Фасад выполнен из светлой камешковой силиконовой штукатурки с вставками из планкена.
Что предусмотрено в планировке?
Кухня-гостиная (40,3 м²) — просторное общее пространство с большим обеденным столом и зоной отдыха. Из неё — выход на задний двор.
Три спальни, мастер-спальня (17,1 м²) с отдельным санузлом и гардеробной для родителей, а также две детских (12,7 и 12,9 м²).
Общий санузел, рядом с детскими комнатами.
Также в доме есть тамбур, тех. помещение и отдельная гардеробная у входа.
Дом сдан в комплектации "Теплый контур". На фасаде подготовлены ниши под планкен (деревянные вставки), которые будут смонтированы в следующем году по просьбе заказчиков.
На первом этаже разворачивается вся ваша повседневная и гостевая жизнь. Её сердце — просторная гостиная-столовая с эффектным вторым светом, где под высоким потолком собирается за обедом вся семья и друзья. Рядом — функциональная кухня с большой кладовой, где есть место для всех запасов. Для работы или уединения предусмотрен кабинет, а для гостей — уютная спальня. Удобства продуманы до мелочей: два санузла на первом этаже и вместительная прихожая с гардеробом, где порядок начинается с порога.
Второй этаж — это приватная зона отдыха для домочадцев.
Этот дом — про комфорт для каждого и радость от жизни вместе.
Большой загородный дом в минималистичном стиле на 447,9 м²
Проект с 5 спальнями, кухней-гостиной и террасами с выходом во двор
В доме продуман удобный гараж на два автомобиля — практичен в любое время года и погоду.
Жилая площадь — 324,5 м² Террасы и балкон — 87,2 м² Гараж — 36,2 м²
Первый этаж: большая кухня-гостиная с выходом на террасу гараж на два автомобиля гостевая спальня и санузел гардеробная при входе постирочная и кладовая гараж на два автомобиля
Второй этаж — спальное пространство: мастер-спальня 3 спальни с гардеробными и санузлами кладовая терраса и балкон
Экстерьер ДСУ-170/2 выполнен в сдержанной геометрии с акцентами из планкена - деревянных вставках на фоне светлой штукатурки. Панели долговечны, не требуют ухода и долго сохраняют свежий вид.
Панорамные окна наполняют дом светом, а терраса расширяет жилое пространство и связывает дом с участком.
Выступающие окна, которые делают дом визуально объёмнее. Подоконник при этом можно использовать как дополнительную поверхность для хранения вещей.
Интерьер повторяет лаконичные формы и светлую палитру фасада.
Под лестницей предусмотрено вместительное место для хранения. Удобно убрать вещи, которые обычно занимают место в комнате — коробки, игрушки или сезонные вещи.
Дом сдан в комплектации "Теплый контур", продолжаются работы по "White Box".
Одноэтажный дом площадью 140м², для комфортной жизни 4-5 человек. Планировка сделана таким образом, что родительская зона никаким образом не пересекается с детской.
Внутри дома на общей площади 140 м² размещены:
Светлая кухня-гостиная с панорамными окнами и выходом на задний двор.
Три спальни, две детских и мастер-спальня, с полноценным санузлом и гардеробной для родителей.
Из преимуществ - это кабинет, для людей, работающих удалённо, или возможность сделать ещё одну спальню, например, гостевую.
Один санузел около детских спален.
Гардеробная, котельная и отдельная прачечная.
Дом сдан в комплектации "White Box".
Типовой проект ДСУ 120. Всеволожский район, д.Кальтино
Проект ДСУ 120 — это одноэтажный дом площадью 120 м². Подойдёт семье из 3–4 человек, которая хочет компактный и продуманный дом. Фасад выполнен из светлой камешковой силиконовой штукатурки с вставками из планкена.
Что предусмотрено в планировке?
Кухня-гостиная (40,3 м²) — просторное общее пространство с большим обеденным столом и зоной отдыха. Из неё — выход на задний двор.
Три спальни, мастер-спальня (17,1 м²) с отдельным санузлом и гардеробной для родителей, а также две детских (12,7 и 12,9 м²).
Общий санузел, рядом с детскими комнатами.
Также в доме есть тамбур, тех. помещение и отдельная гардеробная у входа.
Дом сдан в комплектации "Теплый контур". На фасаде подготовлены ниши под планкен (деревянные вставки), которые будут смонтированы в следующем году по просьбе заказчиков.
Большой загородный дом в минималистичном стиле на 447,9 м²
Проект с 5 спальнями, кухней-гостиной и террасами с выходом во двор
В доме продуман удобный гараж на два автомобиля — практичен в любое время года и погоду.
Жилая площадь — 324,5 м² Террасы и балкон — 87,2 м² Гараж — 36,2 м²
Первый этаж: большая кухня-гостиная с выходом на террасу гараж на два автомобиля гостевая спальня и санузел гардеробная при входе постирочная и кладовая гараж на два автомобиля
Второй этаж — спальное пространство: мастер-спальня 3 спальни с гардеробными и санузлами кладовая терраса и балкон